Y2.3.4
Meld interesse
Kjøp
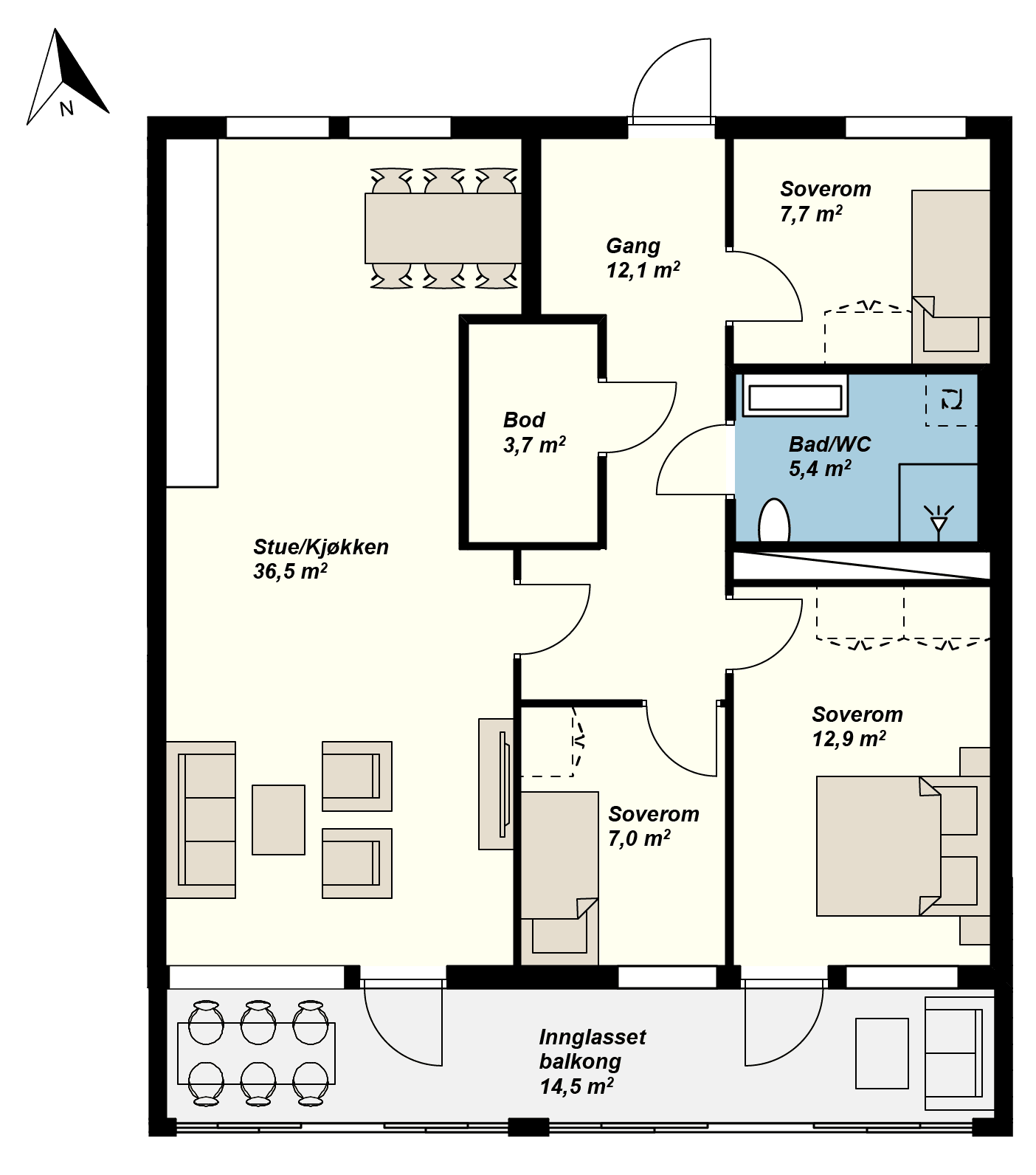
Etasje
1
Soverom
3
BRA-i
90
BRA-e
5
BRA
109,5
Pris
8 390 000
Totalpris
8 414 490
BRA-b
14,5
Balkong
0
Status
Ledig
Vedlegg
Prisliste
Prospekt
Meld interesse for enheten
Fyll inn navn
Fyll inn telefonnummer
Fyll inn e-post
Jeg ønsker å bli kontaktet i samtykke med denne
personvernerklæringen
Send
Powered by Plyo
Tilbake til Bygg Y1-Y2